Wyckoff Lab Transition

Wyckoff Lab Transition Master Plan

Customer No. 55095497  Β·  Project No. 25-00244  Β·  374 Stockholm St, Brooklyn, NY 11237

βœ…
On Track Project Status
πŸ“¦
β€” Days to Delivery (Jun 22)
πŸš€
β€” Days to Go-Live (Nov 10)
πŸ›‘
β€” Days to Hard Stop (Dec 31)

Overall Project Progress

β€”%

Roche Implementation Status

Weekly status from Roche Diagnostics  Β·  Last updated Mar 31, 2026  Β·  PM: Ala Baloum

Instrument / System / Middleware Date Milestone
Type Task Due Date Responsible Status
  • βœ“ Project Dashboard reviewed & introduced to Wyckoff team
  • ⏳ Server provisioning in process β€” due 04/17
  • ⏳ LIS Build β€” Thad to begin within 2 weeks of 3/31
  • ⏳ Test Menu (Workbook) nearly finalized β€” due 04/07
  • ⏳ Rachel distributing staff list for RDU training registration
  • πŸ“Œ Instrument delivery confirmed: June 22, 2026
  • πŸ“Œ Go-Live targeted: November 10, 2026

High-Level Project Roadmap

Five phases from site readiness through stabilization buffer. Construction kicks off April 20 (Lab Week).

Phase Workstream AprMayJunJulAugSepOctNovDec
I Site Readiness 🚧 🚧 βœ…
II Roche Install & Validation πŸ“¦ πŸ§ͺ πŸ§ͺ πŸ§ͺ πŸ§ͺ πŸš€
III Equipment Shuffle πŸš› πŸš› πŸš› πŸš›
IV Staff Training (RDU) πŸ“š πŸ“š πŸ“š πŸ“š βœ…
V THE BUFFER ("BEND") πŸ›‘οΈ πŸ›‘οΈ

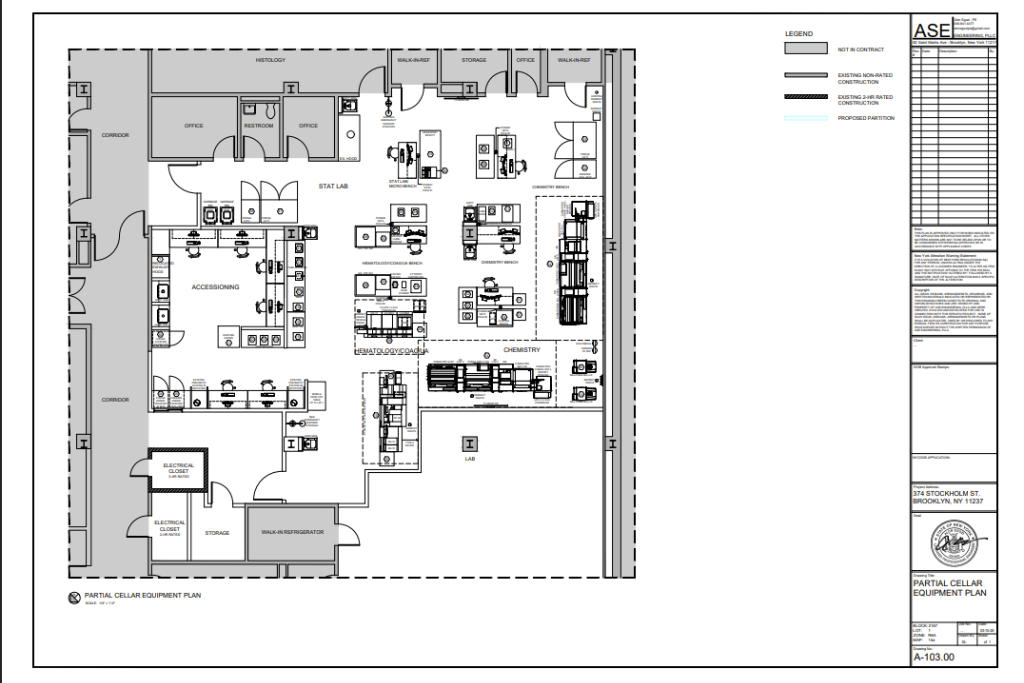
Equipment Inventory & Floor Plan

Full instrument register from ASE drawing A-103.00 β€” Partial Cellar Equipment Plan at 374 Stockholm St, Brooklyn, NY 11237.

# Department Instrument Qty Status Manufacturer Model Placement Electrical

Architectural Drawings β€” ASE A-103.00

Engineering drawings from ASE document A-103.00 β€” Partial Cellar Equipment Plan at 374 Stockholm St.

Floor Plan
πŸ—οΈ
Floor Plan Partial Cellar Equipment Plan
Equipment Schedule
πŸ“‹
Equipment Schedule 38 instruments Β· ASE A-103.00
πŸ§ͺ STAT LAB
πŸ”¬ CHEMISTRY
🩸 HEMATOLOGY / COAG
πŸ“‹ ACCESSIONING
🧫 HISTOLOGY
πŸ₯ LAB
πŸ—„οΈ STORAGE
❄️ WALK-IN REFRIGERATOR
⚑ ELECTRICAL CLOSETS (Γ—2)

Visual Project Gantt Chart

All workstreams β€” Construction, Roche IQ/OQ/PQ, Navify, equipment moves, training β€” mapped across the April–December timeline.

Bi-Weekly Movement Schedule

Every move follows the Pre-Move βž” Relocate βž” Mini-Val protocol for 100% clinical compliance.

Key Strategic Risks

Emphasize these three points to keep visibility with the COO.

πŸ”΄

Validation Overload

Staff will be running Roche Clinical Verifications while simultaneously performing Mini-Validations for every piece of moved equipment. This is why the bi-weekly rhythm is essential β€” it prevents bottleneck pile-up and protects turnaround times.

HIGH IMPACT
β›”

Mock Go-Live (Nov 1–9)

A non-negotiable stress test that must occur 1–3 weeks before launch. Requires at least 3 shifts and simulates the live patient environment. No equipment moves during this window.

CRITICAL
🟑

Infrastructure Lead Times

Roche requires RO (Type II) Lab Grade Water and specific floor drains with water rinse for the cobas pro footprint. If these aren't ready by June 15, the installation window is compromised.

MEDIUM
πŸ”΄

LIS Build & Server Timeline

Server provisioning due 04/17 and LIS build starting 04/20 are both pre-requisites for Roche connectivity. Delays here push the entire validation window. Thad Dobey owns both items.

HIGH IMPACT